PROGETTAZIONE STABILIMENTO INDUSTRIALE per la PRODUZIONE di KART DA COMPETIZIONE

Progettazione del ciclo produttivo e del plant-layout di uno stabilimento e un magazzino centralizzato, per conto di una multinazionale che produce kart da competizione e noleggio.

Suddivisione del ciclo d produzione per reparti:

1. Reparto Carenature
2. Reparto Kit
3. Reparto Ruote
4. Reparto Assemblaggio

Dalla classificazione delle operazioni è stato creato tramite AutoCAD un layout delle singole postazioni di lavoro e dell'intero stabilimento, provvisto di due magazzini.

L'elaborato di progetto include inoltre il dimensionamento di un impianto di riscaldamento con aerotermi nonché di un impianto elettrico con illuminazione secondo normativa UNI 12464-1.

(Impianti Industriali - A.A. 19/20)

Plant Layout stabilimento suddiviso in reparti di produzione, con rappresentazione dei flussi di materiale.

Macro Layout reparto "Carenature" e "Kit".

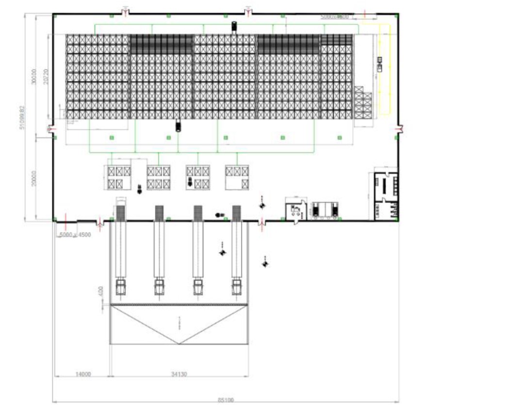
Planimetria MAGAZZINO IN, con scaffalature tradizionali e sistemi di movimentazione dei colli.

Planimetria MAGAZZINO OUT, dove avviene l'imballaggio e confezionamento dei prodotti finiti.

bio

[IT]

Nato a Gallipoli (LE) il 09/10/1998, attualmente studente di Laurea Magistrale in Ingegneria Meccanica (LM-33) al Politecnico di Torino. La presente è una raccolta di alcuni dei progetti didattici ed elaborati realizzati durante l'intero percorso di studi ed attività extra-curriculari.

[EN]

Born in Gallipoli (LE) on 09/10/1998, Master's Degree student in Mechanical Engineering (LM-33) at Polytechnic of Turin (PoliTo). This is a collection of some projects carried out during college years and extra-curricular activities.